Greenhouse

Year 2023
Location Pambula Beach NSW
Project type Alterations + Additions

This adaptive family home blurs the boundaries between inside and outside as a response to the sites characteristics. The addition of a large urban greenhouse extends the liveable areas into a semi-outdoor 'greenhouse' zone, creating a microclimate and revitalising a previously neglected yard.

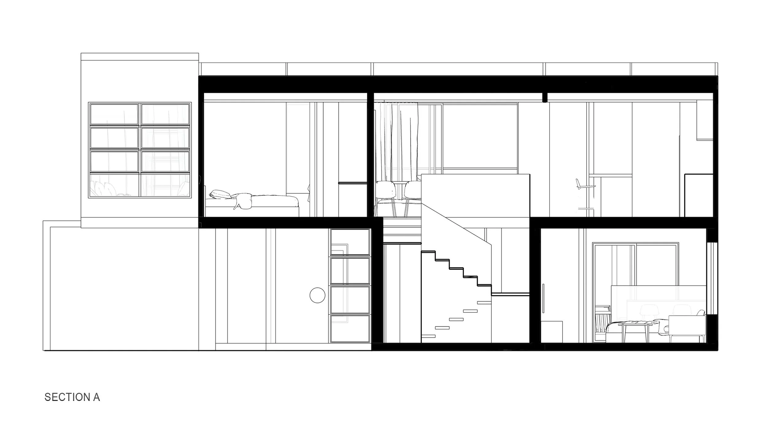
The internal spaces have been reconfigured to enhance the sense of openness and flexibility, accommodating the evolving dynamics of family life.

Double-aspect view corridors are emphasised throughout the house, offering ocean views to the East and lush garden to the West.

A small cantilevered extension above the existing driveway serves as the new master suite, preserving the original footprint of the property.

Previous
Previous

Banksia House

Next
Next

Riverflat House